Cool Houses That Challenge the Status Quo

Four innovative homes ignore conventional wisdom and take the road less traveled.

7 MIN READ

Historic Adaptation

Crisp as a fall day, this New England home has a new playbook, but an old soul.

This prim home’s symmetrical façade is the spitting image of the Wells Thorn House in Deerfield, Mass., which was built between 1711 and 1780 and is considered one of America’s finest specimens of classical Georgian-style architecture. One might easily mistake the imitator as a superb example of historic preservation, but in fact it was built quite recently with prefabricated “mill-built” components from the Connor Homes factory about seven miles away.

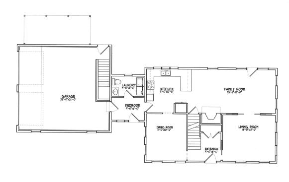
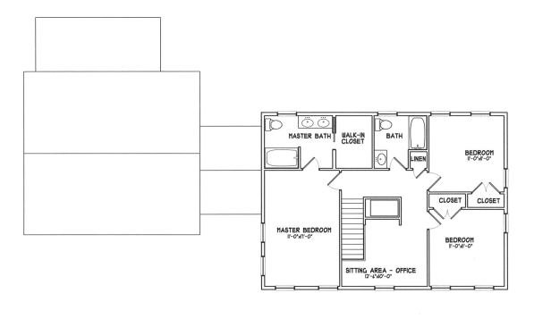
As with all of the builder’s historically inspired homes, the façade maintains a faithful allegiance to the proportions and details of the original, all the way down to its pediments, pilasters, dentils, and 12-over-12 double-hung windows. But the house takes some modern turns inside, trading small rooms for an open plan configuration. The red barn addition is a garage.

“We liken our process to a Hollywood movie set mentality when you’re doing a post-production period film,” says founder and CEO Mike Connor. “Anything you can see on the outside is representative of that former time, but you don’t have to follow tradition all the way through. You can do standard frame or panelized construction in place of post-and-beam and still have the exterior look of an older house.”

Sited in an old-growth apple orchard that is still commercially picked today, the 1,989-square-foot house was built for less than $200 per square foot with prefab rafters, floors, wall systems, and—yes—even trim details. But Connor is quick to point out that it’s skinned in authentic hemlock clapboard and cedar roofing, not composite materials. “We don’t like to stray too far from original building materials,” he explains. “If you start substituting too much, it doesn’t look like the old thing.”

For home buyers who want the best of both worlds, Connor seems to have found a sweet spot. “Historic homes aren’t necessarily big, but they can have a grand presence,” he says. “We’ve found there is a market for those who want a higher level of architectural detail on a smaller footprint.”

About the Author

No recommended contents to display.