Cool Houses That Challenge the Status Quo

Four innovative homes ignore conventional wisdom and take the road less traveled.

7 MIN READ

Vertical Leap

A lightweight home explores uncharted territory high in the sky.

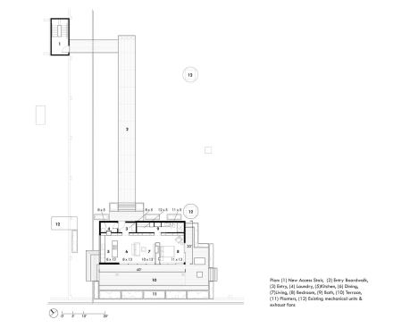
This 800-square-foot home in Seattle’s Ballard neighbor-hood sits high above a 250-slip marina and enjoys panoramic views of Salmon Bay. But it’s not perched on a hillside as one might expect. Commissioned as a caretaker’s unit for the owner of the marina, it’s built on top of a 62,000-square-foot warehouse.

Weight was the first challenge for builders Steve Mann and Scott Chenoweth, since warehouse roofs generally are not built to be load-bearing. To ensure the structural integrity of the “lot,” the team had to run three new columns through the warehouse, with pin-pile footers under each column buried 70 to 90 feet deep in the ground.

“It’s essentially like three toothpicks making a teepee shape down into grade, with a concrete pile cap on top,” explains lead architect Scott Wolf, a partner with The Miller|Hull Partnership. The structural gymnastics alone cost about $200,000.

The house itself is a simple 20-foot-by-40-foot box clad in light-gauge metal and glass with a 500-square-foot wraparound deck. The plan is divided into two parallel bars (living spaces on one side and utilitarian areas on the other), separated by a 40-foot spine wall of built-in shelves and cabinets.

Could industrial rooftops represent the next housing frontier? Wolf thought the idea was at least worth exploring.

“Millions of square feet of warehouse roofs exist in our cities, and most of them are occupied by pigeons,” he says. “The zoning code here allowed only one unit and restricted its size, so you couldn’t build 50 units up there and solve a housing need. But warehouses do offer great views for quirky projects like this one. It’s fun to think about what is possible if we look at these forgotten landscapes as new opportunities.”

About the Author

No recommended contents to display.